Zobacz atrakcje w okolicy:
Muzeum Powstania WarszawskiegoPOLIN Muzeum Historii Żydów PolskichMuzeum Wojska Polskiego w WarszawieCytadela WarszawskaMuzeum KatyńskiePałac KrasińskichPałac Kultury i NaukiFort LegionówOgród SaskiTeatr NarodowyPomnik Małego PowstańcaGrób Nieznanego ŻołnierzaMultimedialny Park FontannZachęta - Narodowa Galeria SztukiWarszawska StarówkaKolumna Zygmunta III WazyZamek Królewski w WarszawieCentrum Pieniądza NBPArkady KubickiegoMuzeum Życia w PRLMieszkanie - Warszawa
Polska to kraj, w którym każdy znajdzie coś dla siebie. Spaceruj uliczkami Krakowa, podziwiaj panoramę Tatr, żegluj po mazurskich jeziorach, odkrywaj legendy zamku w Malborku i rozkoszuj się plażami Bałtyku. Tutaj historia łączy się z nowoczesnością, a natura zachwyca o każdej porze roku. Wybierz nocleg dopasowany do swoich potrzeb i ciesz się komfortem podczas podróży. Zarezerwuj już dziś i rozpocznij przygodę, która zostanie w pamięci na zawsze.
Mieszkanie
Warszawa Nowolipki 23 apartamenty - mieszkania
WiFi
Pokoje dla singli
Rozmawiamy
RU UK
WiFi
Pokoje dla singli
Rozmawiamy
RU UK
Obiekt Mieszkanie, położony w dzielnicy Wola w miejscowości Warszawa, zapewnia bezpłatne Wi-Fi i pralkę. W pobliżu znajduje się: Muzeum Historii Żydów Polskich. Odległość ważnych miejsc od apartamentu: Rynek Nowego Miasta – 1,9 km, Ogród Saski – 2 km.
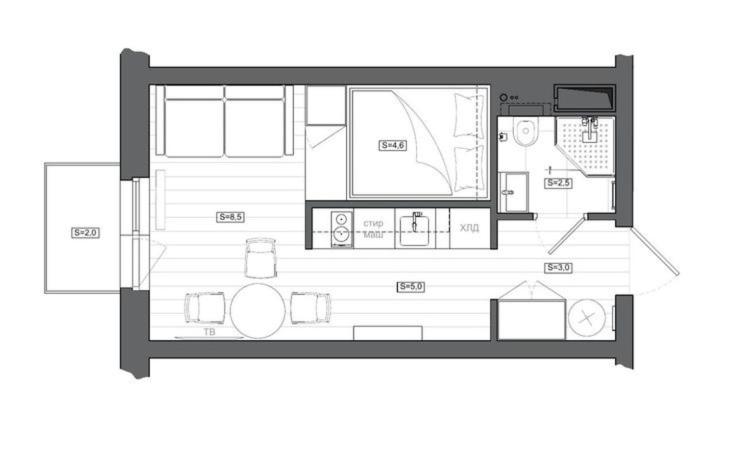
W apartamencie do dyspozycji gości przygotowano sypialnię (1) oraz kuchnię. Wyposażenie obejmuje też telewizor z płaskim ekranem.
W pobliżu obiektu Mieszkanie znajdują się liczne atrakcje, takie jak Pomnik Bohaterów Getta, Pomnik Powstania Warszawskiego i Teatr Wielki - Opera Narodowa. Lotnisko Lotnisko Chopina w Warszawie znajduje się 9 km od obiektu.
Doba hotelowa od godziny 15:00 do 11:00.
W obiekcie obowiązuje zakaz organizowania wieczorów panieńskich, kawalerskich itp.
Zarządzany przez gospodarza prywatnego (osobę fizyczną)
W przypadku pobytu w obiekcie z dziećmi należy pamiętać, że obiekt jest prawnie zobowiązany do stosowania standardów ochrony małoletnich, ustalenia tożsamości małoletnich i ich relacji z osobą dorosłą, z którą przebywają.
Apartament z 1 sypialnią. The apartments kitchen is available for cooking and storing food. This apartment provides a washing machine and a flat-screen TV. The unit offers 1 bed. Apartament - 2 osobowy. Powierzchnia pokoju ok.: 20 mkw.
Dostęp do Internetu
Bezpłatne Wi-Fi
Całkowity zakaz palenia
Wi-Fi
Wi-Fi dostępne w całym obiekcie
